Objektband VARIANT VN 3747/160 Compact Edelstahl matt gebürstet 160 kg 24 mm DINlinks / rechts stumpfe Türen
E6428811
96,50 EUR
(exkl. MwSt.)
114,84 EUR
(inkl. MwSt.)
je 1 Stück
keine Verfügbarkeitsinformationen
Funktionen
Verkaufsdaten
| Mindestbestellmenge | 2 Stück |
| Bestellschritt | 2 Stück |
Beschreibung
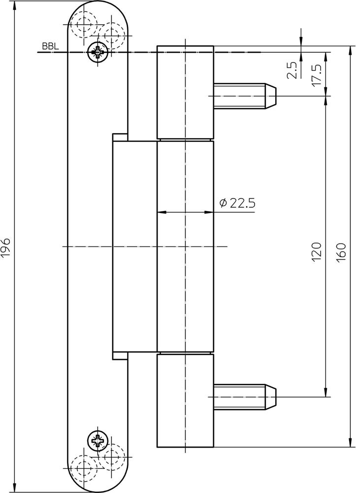
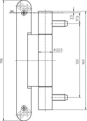
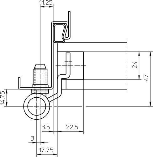
als Umrüstband für ungefälzte Objektüren an Stahlzargen · verdeckt liegende · wartungsfreie Axial-Radial-Gleitlager · DIN links / rechts verwendbar · mit komfortabler 3D verstellbarem Aufnahmeelement im Türflügel für ungefälzte Türen zum Umrüsten an Stahlzargen mit Blindeinnietmutter M10 · Gesamtlänge 160 mm · Rollen- D. 22,5 mm
Weitere technische Eigenschaften:
· Materialstärke: 3,5mm
Weitere technische Eigenschaften:
· Materialstärke: 3,5mm
Merkmale
| Material | Edelstahl |
| Oberfläche | matt gebürstet |
| Belastungswert | 160 kg |
| Rollenlänge | 160 mm |
| Rollen-Ø | 24 mm |
| passend für | stumpfe Türen |
| Typ | VN 3747/160 Compact |
| Ausführung | Standard |
| Anschlagrichtung | DIN links / rechts |
| Lagerung | wartungsfreie Axial-Radial-Gleitlager |
| Marke | SIMONSWERK |